
Trusted by forward thinking teams at
Built for how you work
Work faster without the constant context-switching between tools and documents.
Agentic workflows. Describe your workflow and let Arkyv handle the rest.
Add knowledge. Regulations and project requirements all in one place.
If you're adding a basement bedroom in a one-family house, the room still counts as a sleeping space: it needs an operable egress window or door with at least 5.7 ft² net clear opening (24 in. min. height, 20 in. min. width) and the sill within 44 in. of the floor, per IRC R310—plus a compliant window well where the opening is below grade.
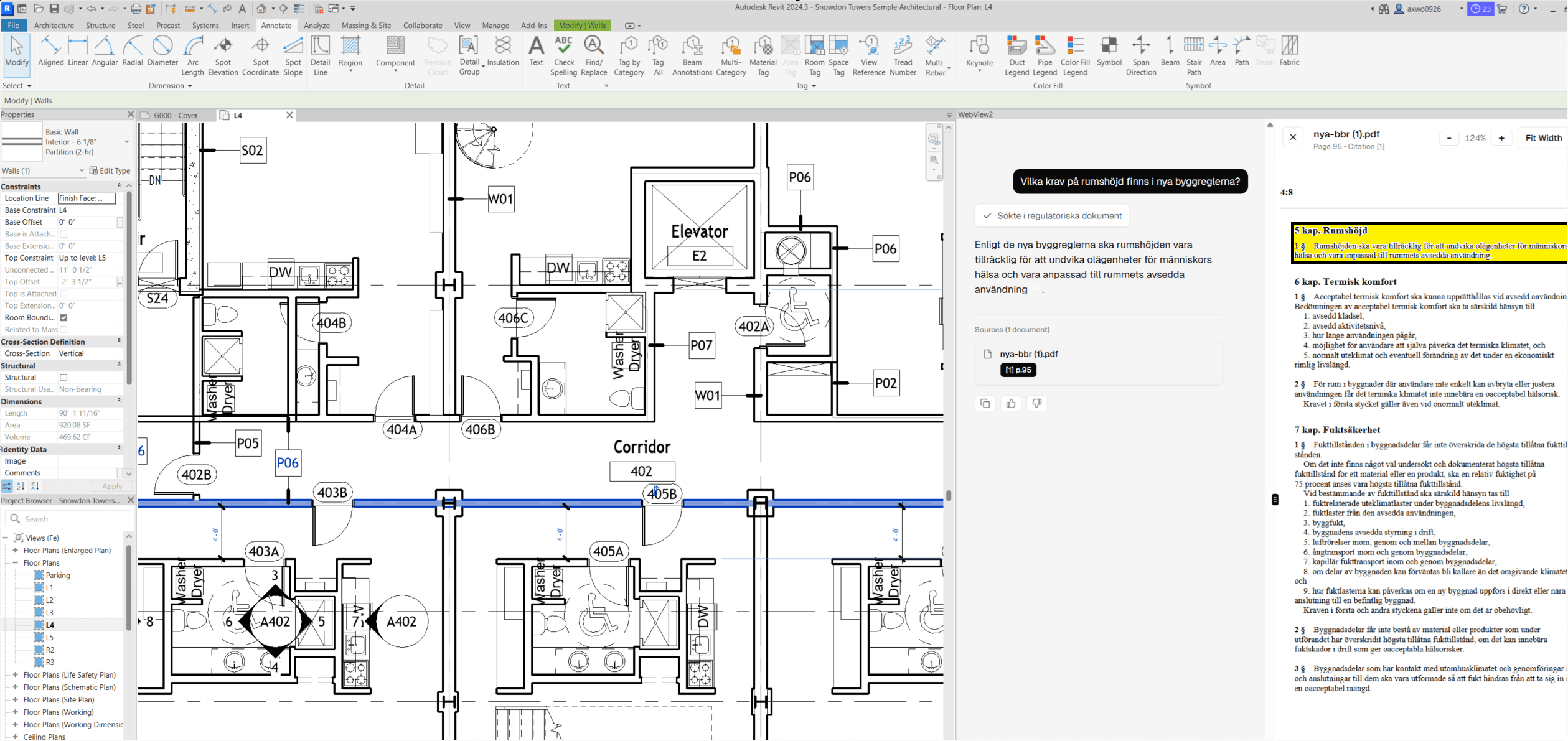
Verifiable answers. Sources and citations for every answer.
Reusable workflows. Keep your best scripts on hand, reuse them anytime, and share them with your team.
Works where you do
Integrate with your existing tools and workflows to streamline your workflow and boost productivity.
What teams say about Arkyv
Architects and engineers use Arkyv for compliance, BIM workflows, and renderings.
An AI tool that delivers precise regulatory answers with transparent references.
Arkyv helps us keep project requirements aligned and ensure quality throughout the process
Arkyv offers an accessible approach to BIM management by allowing you to query the model directly.
Arkyv got the regulations right where other AI tools didn't
An AI tool that delivers precise regulatory answers with transparent references.
Arkyv helps us keep project requirements aligned and ensure quality throughout the process
Arkyv offers an accessible approach to BIM management by allowing you to query the model directly.
Arkyv got the regulations right where other AI tools didn't
Simple plans for every stage
Start small, add capacity when you need it.
See the capabilities of Arkyv
$0/month$0/month
billed monthly
1 Project with up to 20 files
Up to 5 queries per day
Up to 5 renderings per day
Access to all features
For professionals
$39/month$39/month
billed monthly
Unlimited projects with up to 200 files
Up to 500 queries per day
Up to 50 renderings per day
Access to all features
Priority support
For organizations
Custom
Tailored to your team.
Collaborative workspace
Unlimited projects
Unlimited queries per day
Unlimited renderings per day
Access to all features
Custom support
Frequently asked questions
Quick answers before you reach out.
Can't find what you're looking for? Email us.









